Tervetuloa tähän viihtyisään rivitalokotiin, joka sijaitsee rauhallisella ja pidetyllä alueella Sepänkylässä. Asunto tarjoaa toiminnallisuuden, tyylin ja mukavuuden harmonisen yhdistelmän sekä pohjaratkaisun, joka luo avaruutta ja viihtyisyyttä.
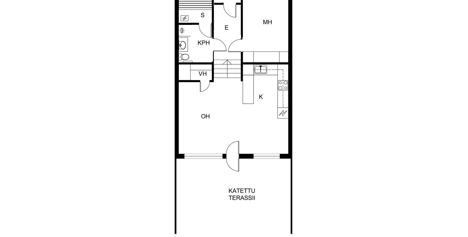
Sisäänkäynnillä sinua tervehtii käytännöllinen kuisti, josta kulku jatkuu asunnon ylemmälle tasolle. Täällä sijaitsevat makuuhuone, siisti kylpyhuone sekä oma sauna, jotka on kunnostettu vuonna 2010.
Muutama porrasaskel alempana saavut kodin avoimeen ja valoisaan oleskelutilaan. Keittiö, joka on uudistettu vuonna 2016, liittyy suoraan olohuoneeseen ja yhdessä ne muodostavat sosiaalisen ja kutsuvan kokonaisuuden. Kerrosten välinen korkeusero antaa tilalle vaikuttavan huonekorkeuden ja runsaasti luonnonvaloa.
Olohuoneesta on käynti omalle suojaisalle takapihalle, jossa on katettu terassi, ihanteellinen paikka rentoutumiseen ja yhdessäoloon lämpiminä vuodenaikoina.
Jokaiseen asuntoon kuuluu oma autokatos ja varasto, ja tontti on asunto-osakeyhtiön omistuksessa.
Hyvin hoidettu ja harkittu koti sinulle, joka arvostat palveluiden läheisyyttä ja harmonista asuinympäristöä.
Ota yhteyttä ja varaa esittely!
















