kerrostalo, 
3h+k+s
237 000,00 €
59,50 m²
2023

Uutta vastaava ja valoisa kolmio Kapteeninkadun tuntumassa ja aivan Palosaaren koulukampuksen läheisyydessä.
Asuinrakennuksen sijainti on erinomainen ottaen huomioon alueen monipuoliset koulutusmahdollisuudet sekä kaiken sen palvelun, jota Palosaaren kaupunginosa tarjoaa kävelyetäisyydellä. Ulkoilumahdollisuudet ja ranta ovat lähellä, ja matka Vaasan keskustaan on lyhyt.
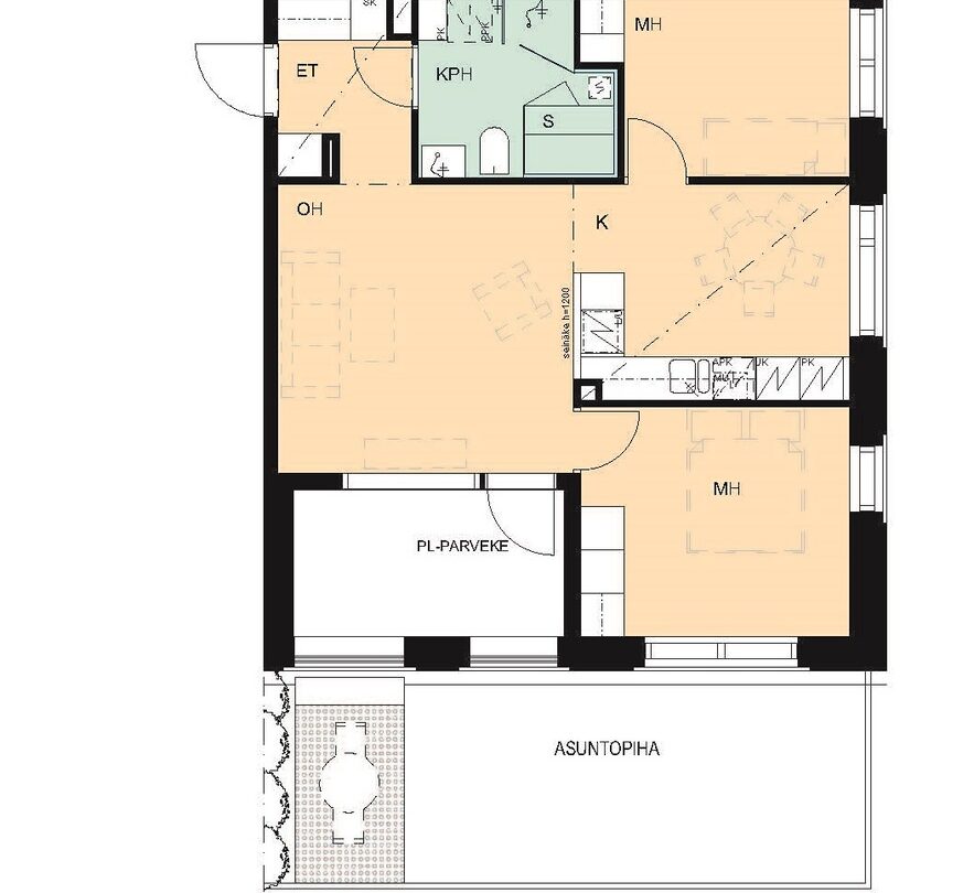
Kuusikerroksinen Asunto Oy Vaasan Laivuri Bostads Ab on varustettu modernilla talotekniikalla. Tässä kolmiossa on oma sauna ja puolilämmin parveke, jota voi hyödyntää ylimääräisenä huoneena ja terassi. Vesikiertoinen lattialämmitys tuo asumismukavuutta, ja asukas voi itse säätää ilmanvaihtoa. Taloyhtiö sijaitsee omalla tontilla ja lämmitysmuotona on kaukolämpö.

Pihakannen alla on pysäköintihalli, johon on kulku suoraan hissillä. Autopaikat myydään erillisinä osakkeina.

Huoneisto myydään vuokrattuna.
Ota yhteyttä saadaksesi lisätietoja!

Ei näyttöjä toistaiseksi

Nybäck Jonny

, Kiinteistönvälittäjä, LKV

"*" näyttää pakolliset kentät

Kenttä on validointitarkoituksiin ja tulee jättää koskemattomaksi.
This field is hidden when viewing the form
Nimi*

Tiedot

Kohdenumero21453204
SijaintiVaasa Palosaari
Kapteeninkatu 30
65200 Vaasa
Tyyppikerrostalo
Omistusmuotooma
Huoneistoselitelmä3h+k+s
Huoneita3 huonetta
Asuintilojen pinta-ala59,50 m²
Kokonaispinta-ala59,50 m²
Kerros/Kerroksia1/6
Rakennusvuosi2023
Käyttöönottovuosi2023
VapautuuAsunto myydään vuokrattuna
Velaton hinta237 000,00 €
Myyntihinta71 439,00 €
Neliöhinta3 983,19 €/m²
Yhtiövastike1 321,40 €/kk
Vesimaksu20,00 €/kk
Lisätiedot maksuistaVesimaksu: oma mittari
Sähkö kulutuksen mukaan, omalla sopimuksella.
Rakennus- ja pintamateriaalitbetoni
Keittiön kuvausLattiamateriaalit: vinyyli
Seinämateriaalit: maalattu
Varusteet: liesituuletin, astianpesukone
Liesi: induktio, erillisuuni
Jääkaappi ja pakastin: jääkaappi, pakastin
Kylpyhuoneen kuvausLattiamateriaalit: laatta
Seinämateriaalit: kaakeli
Varusteet: suihkuseinä, pesukoneliitäntä, lattialämmitys, wc-istuin, suihku, peilikaappi, kiinteät valaisimet
Olohuoneen kuvausLattiamateriaalit: vinyyli
Seinämateriaalit: maalattu
Makuuhuoneiden kuvausLukumäärä: 2
Lattiamateriaalit: vinyyli
Seinämateriaalit: maalattu
KattotyyppiHarjakatto
KattomateriaaliPelti
Kattomateriaalin kuvausPelti
Taloyhtiön nimiAsunto Oy Vaasan Laivuri Bostads Ab
Isännöitsijän yhteystiedotRetta Isännöinti Oy, Thomas Aura, puh.0102286266, thomas.aura@retta.fi
HuoltoRokka & Kukkola Oy
Taloyhtiöön kuuluutalopesula, kuivaushuone, Huoneistokohtaiset varastot
Muuta taloyhtiöstäIlmanvaihto: Koneellinen tulo/poisto.
EnergialuokkaB2018
Tontin koko7514 m²
Tontin omistusoma
SaunaOma sauna
Tilojen kuvausPuolilämmin parveke.
HissiTaloyhtiössä on hissi
ParvekeAsunnossa on parveke
Parvekkeen kuvausParveketyyppi: lasitettu
Ilmansuunta: lounas
Asuntoon kuuluukaapeli-tv
Asunnon kuntohyvä
Asbestikartoitusei
Lämmitysjärjestelmän kuvauskaukolämpö
Tontin omistusoma
Tontin koko7514 m²
KaavoitustilanneAsemakaava

Tilaa esite kohteesta